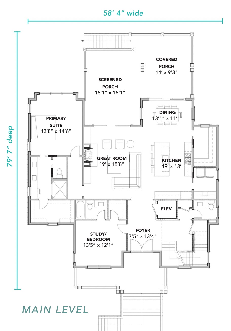
4 or 5 Bedrooms 5.5 Baths Total Heated – 3,063 sq. ft.. First Floor – 1,897 sq. ft. Second Floor – 1,166 sq. ft. Covered Porch – 550 sq. ft.
Phone
Email
Address
33 Broad Street Charleston, SC 29401
Message sent successfully!